Inmueble comercial en venta

direccion Manuela Pedraza 1392, Lanús Oeste

volver Volver al listado
left
right
left
right

Venta

Rebajado

Precio rebajado

USD 230.000

Rebaja 15 %
  • Tipo de propiedad Inmuebles Comerciales
  • ambientes +4 Ambientes
  • toilet 3 baños
  • Apto crédito Con apto crédito
  • Superficie cubierta Sup. cubierta 300m2
  • Superficie total Sup. total 300m2

Acerca de la propiedad

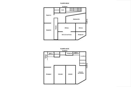
Inmueble comercial desarrollado en 2 plantas, ideal deposito, distribuidora, consultorios, etc. Cuenta con montacargas/ascensor. Cuenta con recepcion, y varios ambientes (consultorios, provados, oficinas), distribuidos en las dos plantas. Posee tres baños, dos de los cuales son con vestuario.
Venta directa. Libre de gastos para el vendedor.

Comodidades

Ver más

Ubicación

Distintos en un mundo de iguales!

Servicio brindado por

buscadorprop

Todos los derechos registrados:

grupotodo
whatsapp Whatsapp email Contactar telefono Llamar
Chatea con nosotros whatsapp